Карнизная планка
Карнизная планка — простейший, но от этого ничуть не менее значимый элемент кровельной системы, выполняющий несколько важных задач:
- предотвращение намокания крайних деревянных элементов кровельной конструкции (бруса или доски обрешетки, лобовой доски) при переполнении водосборных лотков;
- защита от косого дождя, задувания стекающей воды под кровлю;
- направление капающего конденсата в водосточную систему.
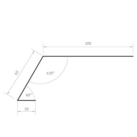
Карнизная планка выполнена в виде продолговатого элемента, который имеет технологию производства, аналогичную основному кровельному материалу. Основной функцией карнизной планки является защита лобовой карнизной доски от проникновения влаги при обильных атмосферных осадках. Как следствие, карнизная планка защищает от попадания влаги подкровельное пространство.



